rekisteriseloste

Tiedote rekisteröitymisestä

Jos et ole saanut vahvistusviestiä rekisteröitymisestä si, tarkista roskapostikansiosi. Tämä erityisesti hotmail ja gmail sähköpostin käyttäjille.

Kirjoittaja Aihe: Ducaton sulakkeet  (Luettu 36864 kertaa)

*****
  • Kaikkien Kaveri
  • Aiheen aloittaja
  • Viimeksi paikalla: 3.10.2019 kello on 10:54
Ducaton sulakkeet
« : 24.07.2012 kello on 19:21 »
Meinasi mennä sormi suuhun, kun piti paikallistaa uuden Ducaton sulakkeet. Maasto ja kartta näyttävät täysin erilaisilta. Onko joku saanut käsiinsä uutta sulakekarttaa? Ohessa hieman huonolaatuinen kuva sulakkeista.

*****
  • Kaikkien Kaveri
  • Viimeksi paikalla:tänään kello 15:19
Vs: Ducaton sulakkeet
« Vastaus #1 : 24.07.2012 kello on 20:15 »
Ja tuo kuva on ilmeisesti koelaudan sulakerasiasta. Lähden katsomaan, just a minute!

*****
  • Kaikkien Kaveri
  • Viimeksi paikalla:tänään kello 15:19
Vs: Ducaton sulakkeet
« Vastaus #2 : 24.07.2012 kello on 20:36 »
Samaltahan tuo näyttää paitsi että mulla on tyhjä tuossa keskirivillä. Eikä tosiaan vastaa alkuunkaan ohjekirjan kuvaa 200

*****
  • Karavaanari
  • Viimeksi paikalla:21.03.2023 kello on 12:22
  • Myös motoristi
Vs: Ducaton sulakkeet
« Vastaus #3 : 21.08.2017 kello on 16:08 »
Moro. Löytyykö kellään sulakekaaviota ducato 2002-2006. Vasen parkki pimeänä,eikä ohjekirjassa ole sulakekaaviota. Ensin jos tarkistais sulakkeet ja sitten syvällisemmin,jos ei ole sulakevika.
Kuva sulakepanelista.

*****
  • Karavaanari
  • Viimeksi paikalla:23.02.2026 kello on 20:19
  • Adria Action 341PH -09
Vs: Ducaton sulakkeet
« Vastaus #4 : 21.08.2017 kello on 20:05 »
Ducato II ohjekirjasta kuvattuna sulakkeiden sijainti ja lista sulakkeista.

Jarkko
« Viimeksi muokattu: 21.08.2017 kello on 20:30 »

*****
  • Karavaanari
  • Viimeksi paikalla:21.03.2023 kello on 12:22
  • Myös motoristi
Vs: Ducaton sulakkeet
« Vastaus #5 : 22.08.2017 kello on 07:36 »
KIITOS.  Selkeät kuvat,täsä on hyvä jatkaa vianetsintää.

*****
  • Karavaanari
  • Viimeksi paikalla:21.03.2023 kello on 12:22
  • Myös motoristi
Vs: Ducaton sulakkeet
« Vastaus #6 : 22.08.2017 kello on 10:45 »
Sulakehan sieltä oli palanut. Helppo korjata,kun sai hyvät kuvat, kiitos lähettäjälle vielä kerran.

*****
  • Karavaanari
  • Viimeksi paikalla:23.02.2026 kello on 20:19
  • Adria Action 341PH -09
Vs: Ducaton sulakkeet
« Vastaus #7 : 22.08.2017 kello on 13:25 »
 Thumb

Hienoa että selvisi.

Jarkko

*****
  • Karavaanari
  • Viimeksi paikalla:21.03.2023 kello on 12:22
  • Myös motoristi
Vs: Ducaton sulakkeet
« Vastaus #8 : 30.08.2017 kello on 15:52 »
Tervehdys.
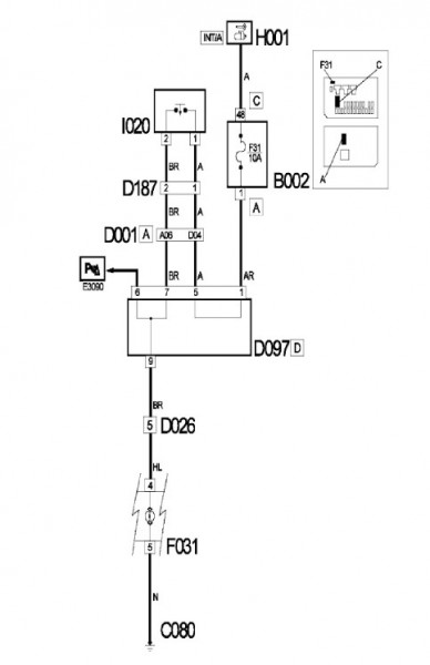
Minulla on aikomus asentaa peruutuskamera,mutta en löydä tuosta sulakekaaviosta peruutusvalolle sulaketta. Onko niin,että peruutusvalolle ei ole omaa sulaketta,vaan syöttö on jostakin muusta kautta. Meinaan ottaa kameralle virran peruutusvalolta,ja samoin näytölle,jos löydän etupuolelta sopivan ottopaikan. Vaihdelaatikon päällä on ilmeisesti kytkin,josta saa,mutta onko helpompaa paikkaa ja mieluummin sulakkeen takaa. Ducato on vm. 2005 ja Hymerin asunto-osalla.

*****
  • Kaikkien kaveri Sr.
  • Viimeksi paikalla:tänään kello 19:46
  • Fiat Carado T448 2.3 130 -13
Vs: Ducaton sulakkeet
« Vastaus #9 : 30.08.2017 kello on 18:08 »
http://www.fiatforum.com/ducato/226380-reverse-light-fuse.html

F31 (ignition commuter) tuon mukaan. Tosin ei vuosimallia mainittu.

*****
  • Kaikkien Kaveri
  • Viimeksi paikalla:13.02.2026 kello on 17:15
    • Matkailuvinkkejä
Vs: Ducaton sulakkeet
« Vastaus #10 : 30.08.2017 kello on 20:08 »
Olisiko tuosta apua



*****
  • Karavaanari
  • Viimeksi paikalla:21.03.2023 kello on 12:22
  • Myös motoristi
Vs: Ducaton sulakkeet
« Vastaus #11 : 31.08.2017 kello on 10:03 »
Kiitos tiedoista,tuosta on hyvä jatkaa. Meinasin ottaa kylkioton kuvan mukaisella haarottimella.

*****
  • Karavaanari
  • Viimeksi paikalla:21.03.2023 kello on 12:22
  • Myös motoristi
Vs: Ducaton sulakkeet
« Vastaus #12 : 7.09.2017 kello on 16:45 »
Moro.
Kamera asennettu,hyvin pelaa,kun sai tietoa sulakkeista. Tuo edellä esitetyn mukainen sulakehaaroitin ei käy Ducatoon,pitää olla Motonetin malli. Ohessa kuva siitä.

  • Vieras
  • Vs: Ducaton sulakkeet
    « Vastaus #13 : 12.09.2017 kello on 12:52 »
    Samaltahan tuo näyttää paitsi että mulla on tyhjä tuossa keskirivillä. Eikä tosiaan vastaa alkuunkaan ohjekirjan kuvaa 200
    Joko löytyi tuohon sulakepoksiin kaavio/selitykset mikä on mikäkin vai pitäneekö auton ohjekirja kutinsa siltä osin auto vm -12 ducato
    kiito ;Ds

  • Vieras
  • Vs: Ducaton sulakkeet
    « Vastaus #14 : 21.06.2023 kello on 17:45 »
    Samaltahan tuo näyttää paitsi että mulla on tyhjä tuossa keskirivillä. Eikä tosiaan vastaa alkuunkaan ohjekirjan kuvaa 200

    Löytyiskö tätä kuvaa vastaavaa sulakekaaviota. Ohjekirja hukassa.

     

    anything