rekisteriseloste

Tiedote rekisteröitymisestä

Jos et ole saanut vahvistusviestiä rekisteröitymisestä si, tarkista roskapostikansiosi. Tämä erityisesti hotmail ja gmail sähköpostin käyttäjille.

Kirjoittaja Aihe: Käynnistysakun lataus  (Luettu 9811 kertaa)

*****
  • Karavaanari
  • Aiheen aloittaja
  • Viimeksi paikalla:28.01.2026 kello on 22:26
Käynnistysakun lataus
« : 5.04.2021 kello on 14:16 »
Asentelin autoon Alpine X903D-DU2 soittimen, joka on yhdistetty mm auton LAN-väylään. Sähkö siihen tulee siten ajoakulta, ei voi mitään.

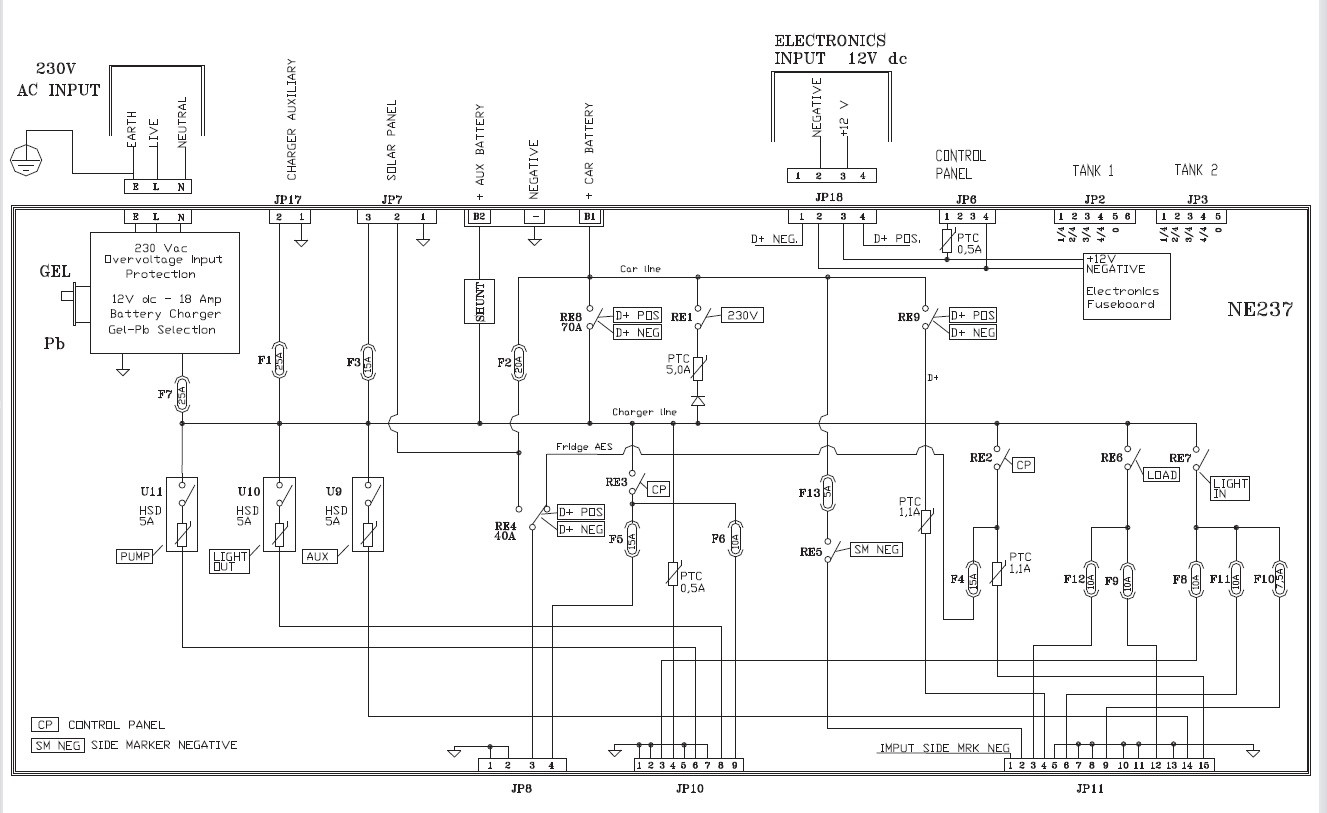
Katolle on tulossa Amerisolar PERC 290w paneeli ja säätimeksi Victron SmartSolar MPPT 100/20, jonka kytken NE237 boksin JP7 liittimeen.
Tuossa JP7 liittimessä on mahdollisuus myös ajoakun lataukseen, mikä olisi tuon soittimen kannalta hyvä ratkaisu.
Voinko jakaa säätimeltä tulevan pluspiuhan JP7 liittimen 2 ja 3 navoille? Molempiin kannattanee asentaa diodit?
Entä miten lataussäädin suhtautuu tuohon? Liitäntä lienee tarkoitettu aurinkosäätimelle, jossa olisi valmiina 2 piiriä?
NE237 manuaalissa on maininta
If there is the main supply 230V, the charger, as well as recharge the battery service,shall also charge the
car battery with a current of about 5A.. The charge is activated automatically when the battery voltage
exceeds the services of the car battery.
mutta tuo ei auta tässä tilanteessa.

Onko muita suositeltavia tapoja ajoakun ylläpitoon? Erotusrele?


« Viimeksi muokattu: 5.04.2021 kello on 15:03 »

*****
  • Saittisähläri
  • Kalustoon kuuluva
  • Viimeksi paikalla:eilen kello 13:30
  • Epsoo
Vs: Käynnistysakun lataus
« Vastaus #1 : 5.04.2021 kello on 15:10 »
Itse kytkisin säätimen sulakkeen kautta suoraan akkuun. Tämä koska säädin haistelee akun jännitettä, joten ylimääräisistä liitoksista tms. voi tulla mittausvirheitä.

*****
  • Kaikkien Kaveri
  • Viimeksi paikalla:eilen kello 15:21
  • RAV 4
Vs: Käynnistysakun lataus
« Vastaus #2 : 5.04.2021 kello on 15:47 »
Radiolle vetäisin oman virtapiuhan hupipuolelta ni ei tarviis ajoakkua latailla-

*****
  • Karavaanari
  • Aiheen aloittaja
  • Viimeksi paikalla:28.01.2026 kello on 22:26
Vs: Käynnistysakun lataus
« Vastaus #3 : 5.04.2021 kello on 16:00 »
Radiolle vetäisin oman virtapiuhan hupipuolelta ni ei tarviis ajoakkua latailla-
Tämä ei taida onnistua tuon LAN-väylä kytkennän vuoksi. Alpinessa siis peruutuskamera ja navigaattori.

*****
  • Karavaanari
  • Aiheen aloittaja
  • Viimeksi paikalla:28.01.2026 kello on 22:26
Vs: Käynnistysakun lataus
« Vastaus #4 : 5.04.2021 kello on 16:02 »
Itse kytkisin säätimen sulakkeen kautta suoraan akkuun. Tämä koska säädin haistelee akun jännitettä, joten ylimääräisistä liitoksista tms. voi tulla mittausvirheitä.
Ei taida auttaa tuohon kysymykseeni, miten ylläpitää ajoakkua puskassa, kun soitin käytössä.

*****
  • Kaikkien Kaveri
  • Viimeksi paikalla:eilen kello 15:21
  • RAV 4
Vs: Käynnistysakun lataus
« Vastaus #5 : 5.04.2021 kello on 16:20 »
Tämä ei taida onnistua tuon LAN-väylä kytkennän vuoksi. Alpinessa siis peruutuskamera ja navigaattori.

Mikäs siinä sitten lan väylään on kytketty jos radio hupi akussa?

*****
  • Karavaanari
  • Aiheen aloittaja
  • Viimeksi paikalla:28.01.2026 kello on 22:26
Vs: Käynnistysakun lataus
« Vastaus #6 : 5.04.2021 kello on 16:52 »
https://audiohellman.fi/tuote/soittimet/automallikohtaiset/fiat-ducato/x903d-du2-ducato/

Ainakin peruutuskameran kytkentä ja sammutus kuljettajan oven avauksesta.


*****
  • Kaikkien Kaveri
  • Viimeksi paikalla:eilen kello 15:21
  • RAV 4
Vs: Käynnistysakun lataus
« Vastaus #7 : 5.04.2021 kello on 16:57 »
Langallinen? Siis yhteys näyttöön!

*****
  • Karavaanari
  • Aiheen aloittaja
  • Viimeksi paikalla:28.01.2026 kello on 22:26
Vs: Käynnistysakun lataus
« Vastaus #8 : 5.04.2021 kello on 17:33 »
Soittimesta lisää uudessa ketjussa
https://karavaanari.org/index.php?topic=25830.msg516648#msg516648

*****
  • Karavaanari
  • Aiheen aloittaja
  • Viimeksi paikalla:28.01.2026 kello on 22:26
Vs: Käynnistysakun lataus
« Vastaus #9 : 6.04.2021 kello on 08:56 »
Asentelin autoon Alpine X903D-DU2 soittimen, joka on yhdistetty mm auton LAN-väylään. Sähkö siihen tulee siten ajoakulta, ei voi mitään.

Korjaus ylläolevaan, yhdistetty tietysti CAN-väylään :-[

*****
  • LämmitinGuru
  • Kalustoon kuuluva
  • Viimeksi paikalla:30.01.2026 kello on 22:09
Vs: Käynnistysakun lataus
« Vastaus #10 : 3.05.2021 kello on 08:19 »
Kytke tämmöisellä. Näitä olen käyttänyt. Saa Motonetista.  https://www.motonet.fi/fi/tuote/481355/LED-Huomiovalojen-johtoohjainsarja-12V






« Viimeksi muokattu: 3.05.2021 kello on 09:05 »

*****
  • Karavaanari
  • Aiheen aloittaja
  • Viimeksi paikalla:28.01.2026 kello on 22:26
Vs: Käynnistysakun lataus
« Vastaus #11 : 3.05.2021 kello on 09:58 »
Kiitos mjo33400

Ilmeisesti tuo huomiovalopoksi antaa herätteen releelle kun hupiakun jännite on tarpeeksi korkea, luokkaa 14v?

Minkälainen diodi tuohon pitäisi laittaa?

Entä voisiko diodin kanssa sarjaan laittaa vastuksen rajoittamaan ajoakulle menevää osuutta latausvirrasta?

*****
  • LämmitinGuru
  • Kalustoon kuuluva
  • Viimeksi paikalla:30.01.2026 kello on 22:09
Vs: Käynnistysakun lataus
« Vastaus #12 : 3.05.2021 kello on 13:32 »
Juuri noin eli noin 14 volttia niin kytkee auton akun mukaan lataukseen ja jos lataus loppuu hupiakulta niin kun hupiakun napajännite läskee noin 13,5 volttiin rele erottaa akut toisistaan.Diodissa han on kynnysjännite joka jo pudottaa auton akulle menevää jännitettä. Esim. 5 Ampeerin diodi voisi olla ok, koska ei autonakulle tarvitse mennä virtaa kuin noin 2-3 Ampeeria ( ylläpitolataus ).

*****
  • Karavaanari
  • Aiheen aloittaja
  • Viimeksi paikalla:28.01.2026 kello on 22:26
Vs: Käynnistysakun lataus
« Vastaus #13 : 3.05.2021 kello on 14:04 »
Hienoa  :)
Tuon voinee kytkeä JP7 liittimeen menevien johtojen rinnalle, lataussäätimen ja boksin väliin?
Tuossa sinun kytkentäkaaviossa lienee joku muu boksi.

*****
  • LämmitinGuru
  • Kalustoon kuuluva
  • Viimeksi paikalla:30.01.2026 kello on 22:09
Vs: Käynnistysakun lataus
« Vastaus #14 : 3.05.2021 kello on 19:57 »
Hienoa  :)
Tuon voinee kytkeä JP7 liittimeen menevien johtojen rinnalle, lataussäätimen ja boksin väliin?
Tuossa sinun kytkentäkaaviossa lienee joku muu boksi.

Kyllä se on sama poksi, mutta eri tilanteessa ja eri laitteessa. Poksi on avainkysymys. ;)