rekisteriseloste

Tiedote rekisteröitymisestä

Jos et ole saanut vahvistusviestiä rekisteröitymisestä si, tarkista roskapostikansiosi. Tämä erityisesti hotmail ja gmail sähköpostin käyttäjille.

Kirjoittaja Aihe: Lattialämmityksestä ihmettelyä.  (Luettu 10622 kertaa)

*****
  • Karavaanari
  • Viimeksi paikalla:13.01.2025 kello on 20:58
Vs: Lattialämmityksestä ihmettelyä.
« Vastaus #15 : 16.11.2020 kello on 21:51 »
 Onkohan tuo lattialämmitin systeemi ajateltu aivan loppuunasti.
 Miten toimitaan jos halutaan esim. kesällä vain lattialämmitys,ja mitenpäin tuo lattialämmitys kiertää ::)
   Sorry
 PS.Nuo pannun vieressä olevat letkuthan ovatkin paluuletkuja  :'(

*****
  • Kalustoon kuuluva
  • Viimeksi paikalla:tänään kello 17:46
Vs: Lattialämmityksestä ihmettelyä.
« Vastaus #16 : 16.11.2020 kello on 21:54 »
^
Punainen hana vain kiinni, niin ainoastaan lattiassa kiertää..

*****
  • LämmitinGuru
  • Aluevalvoja
  • Kalustoon kuuluva
  • Viimeksi paikalla:tänään kello 09:13
Vs: Lattialämmityksestä ihmettelyä.
« Vastaus #17 : 16.11.2020 kello on 22:00 »
^
Punainen hana vain kiinni, niin ainoastaan lattiassa kiertää..

Pystytkö piirtämään ton kuvainnollisesti?

*****
  • Kaikkien kaveri Sr.
  • Viimeksi paikalla: 1.04.2026 kello on 19:52
Vs: Lattialämmityksestä ihmettelyä.
« Vastaus #18 : 16.11.2020 kello on 22:51 »
Kyllä minäkin oisin sitä mieltä että punaista hanaa sulkemalla (kuristamalla patteriverkostoa) saa enempi kiertoa lattiaan. Tosin putket ohuemmat niin vastusta enempi mitä patteriverkostossa kun hana täysin auki. Taivuta MJO meille rautalangasta jos ollaan väärässä tuon hanan suhteen.

*****
  • Kalustoon kuuluva
  • Viimeksi paikalla:tänään kello 17:46
Vs: Lattialämmityksestä ihmettelyä.
« Vastaus #19 : 16.11.2020 kello on 23:29 »
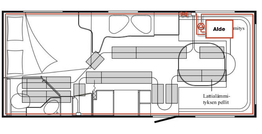
Pystytkö piirtämään ton kuvainnollisesti?
Olisko tämän näköinen?



*****
  • Karavaanari
  • Aiheen aloittaja
  • Viimeksi paikalla:23.05.2021 kello on 17:29
Vs: Lattialämmityksestä ihmettelyä.
« Vastaus #20 : 16.11.2020 kello on 23:55 »
Punainen hana on juurikin tuossa alden vasemmalla puolella.
Testailen sen ja samoin 12v pumpun huomenissa.

*****
  • LämmitinGuru
  • Aluevalvoja
  • Kalustoon kuuluva
  • Viimeksi paikalla:tänään kello 09:13
Vs: Lattialämmityksestä ihmettelyä.
« Vastaus #21 : 17.11.2020 kello on 08:20 »
Olisko tämän näköinen?

(Kuva piiloitettu, klikkaa tätä niin näet kuvan.)

Tarkoitin, että piirrä se miten lattialämmitys kiertää. Minun vaunussa oli vain pannun päässä lähtö ja tuloputki tai en ainakaan löytänyt muualta kuten tuossa ylhäällä olevassa kuvassa on, sen takia kiinnostaa miten kiertää.

*****
  • Kaikkien Kaveri
  • Viimeksi paikalla: 1.04.2026 kello on 20:46
  • viihtyy puskissa
Vs: Lattialämmityksestä ihmettelyä.
« Vastaus #22 : 17.11.2020 kello on 08:48 »
Minun vaunussa jää tuo punainen hana hiukan vajaaksi, ei mene kokonaan poikittain. Kierto pienenee kyllä pattereissa, makuuhuone viilenee sopivasti pari- kolme astetta. Mitenkähän se muissa vastaavissa vaunuissa toimii, jääkö pieni kierto vai sulkeeko kokonaan? Sehän voisi syksyllä olla kiva, jos saisi sen kokonaan kiinni, niin suurin osa menisi silloin lattiakiertoon.

*****
  • LämmitinGuru
  • Aluevalvoja
  • Kalustoon kuuluva
  • Viimeksi paikalla:tänään kello 09:13
Vs: Lattialämmityksestä ihmettelyä.
« Vastaus #23 : 17.11.2020 kello on 11:31 »
Minun vaunussa jää tuo punainen hana hiukan vajaaksi, ei mene kokonaan poikittain. Kierto pienenee kyllä pattereissa, makuuhuone viilenee sopivasti pari- kolme astetta. Mitenkähän se muissa vastaavissa vaunuissa toimii, jääkö pieni kierto vai sulkeeko kokonaan? Sehän voisi syksyllä olla kiva, jos saisi sen kokonaan kiinni, niin suurin osa menisi silloin lattiakiertoon.

Sulkuhana sulkee sen kokonaan. Kun halutaan lämminta vettä, mutta ei lämmitystä niin kierto suljetaan.

*****
  • Kaikkien Kaveri
  • Viimeksi paikalla:tänään kello 11:34
  • RAV 4
Vs: Lattialämmityksestä ihmettelyä.
« Vastaus #24 : 17.11.2020 kello on 12:55 »
Kyllä vaikuttaa ihan oikealta tuo kuva.Tosiaan ainoa paikka mistä nuo lattialämmityksen letkut ovat näkyvillä on lämmittimen vieressä ja vessan vieressä olevan "meikkipöydän"alla.Molemmissa toinen letku on tulikuuma ja toinen kylmä.Pöytäryhmältä jääkaapinvieressä olevalle sähkökeskukselle lattia on täysin kylmä toisella puolella vaunua.Ainoa hana on tuo alden vieressä oleva punainen.

(Kuva piiloitettu, klikkaa tätä niin näet kuvan.)


(Kuva piiloitettu, klikkaa tätä niin näet kuvan.)

Eikös tuossa ole lähdöt ja paluut,toimii vaikka hana on kiinni! Kaksi piirinen lattialämmitys.

*****
  • Kalustoon kuuluva
  • Viimeksi paikalla:tänään kello 17:46
Vs: Lattialämmityksestä ihmettelyä.
« Vastaus #25 : 17.11.2020 kello on 13:08 »
Netistä löytyi vastaus:
https://docplayer.se/45261878-Soliferpolar-ab-dorotea-tel.html
Lainaus
Reglering av värme

I vagnar med vattenburen golvvärme kan värmen till viss del stängas av i vagnens bakre sovdel. Detta görs genom att stänga shuntventilen som sitter monterad på vagnens värmeslinga.Shuntve ntilen är i de flesta vagnar placerad i den vänstra bäddlådan fram (se tabell).
"..osittain sulkea vaunun taaemmasta nukkumisosasta", jääkö pienelle vai lattialämpökö se sulkeutumaton osa..



*****
  • Kalustoon kuuluva
  • Viimeksi paikalla:tänään kello 20:06
  • Autossa on pyörät
Vs: Lattialämmityksestä ihmettelyä.
« Vastaus #26 : 17.11.2020 kello on 13:51 »
Se suntti ei mene kokonaan kiinni, pienentää patterivirtaamaa ja jättää lattiakierron

på finska


« Viimeksi muokattu: 17.11.2020 kello on 14:08 »

*****
  • Karavaanari
  • Viimeksi paikalla:15.06.2025 kello on 11:35
Vs: Lattialämmityksestä ihmettelyä.
« Vastaus #27 : 17.11.2020 kello on 15:04 »
Näyttäisi samanlaiselta systeemiltä, kuin omassa vaunussani (630ph -10)
Hanan ollessa kiinni vesi kiertää keulan patteriverkostossa sinne kaapille asti, mistä lattiakierrot lähtevät. Sieltä lattiapiirejä pitkin tuohon hanan viereen, missä on lattiapiirien paluu ja siitä pannuun. En tiedä, sulkeutuuko suntti kokonaan, omassani putki kyllä menee kylmäksi. Nollakelillä vaunun vessapääty viileni jo niin paljon, että suntin kiinnipitokokeilu loppui hyvin pian. Ja tosiaankin itselläni käyttöikänsä saavuttanut pumppu oireili jurinana ja viileänä lattiana, ero oli selvä 12V pumpun hyväksi. Toki ilmalukko lattiapiirissä voisi aiheuttaa tämän myös, hana kiinni ja kokeilua molemmilla pumpuilla ja vaunun keulaa ylös/alas.

T. Rami

*****
  • Kaikkien Kaveri
  • Viimeksi paikalla:29.03.2026 kello on 17:08
Vs: Lattialämmityksestä ihmettelyä.
« Vastaus #28 : 17.11.2020 kello on 15:39 »
Sama vielä kuvina.

Alkuperäiseen ongelmaan:
Jos ei ole huonosta pumpusta kyse, vaan ilmasta toisessa lattialenkissä niin ilman poistumista voi hanan lisäksi tehostaa sulkemalla lämpöisen lattiapiirin lukkopihdeillä sieltä kaapin letkusta.

 

anything